Investiční příležitost Pavlov (Pálava)- prodej projektu unikátního Vinařského domu s moderním vinným sklepem a prodejní galerií vín, na pozemku 461 m2
O nemovitosti
Hledáte výjimečnou investici v jedné z nejatraktivnějších částí jižní Moravy? Nabízíme projekt Vinařského domu s moderním vinným sklepem a prodejní galerií vín v obci Pavlov, přímo pod zříceninou hradu Děvičky. Na pozemku o velikosti 461 m² je připraven třípodlažní objekt se čtyřmi apartmány a platným stavebním povolením – stavbu je možné zahájit okamžitě.
Investiční příležitost – Prodej projektu unikátního Vinařského domu s moderním vinným sklepem a prodejní galerií vín, na pozemku 461 m2 v obci Pavlov (Pálava)
Perfektní příležitost nejen pro ty, kteří hledají možnost prezentace vlastní společnosti nebo značky v top lokalitě jižní Moravy.
Pozemek 16/12 x 32 m disponuje platným stavebním povolením na třípodlažní objekt – rodinný dům – s možností okamžitého zahájení stavby. Nabízí flexibilní využití, ať už pro komerční, rekreační či soukromé účely s jistotou stabilního příjmu. Turisticky velmi atraktivní místo v centrální části Pavlova, přímo pod zříceninou hradu Děvičky a s výhledem na nádrž Nové Mlýny.
Podrobnější informace
Projekt zahrnuje čtyři samostatné apartmány, které jsou ideální pro krátkodobé pronájmy s vysokým potenciálem návratnosti. Díky atraktivní poloze v jedné z nejvyhledávanějších turistických oblastí jižní Moravy, v těsné blízkosti Pálavských vrchů a vinařských oblastí, je tento pozemek skvělou příležitostí pro rozvoj investičního záměru s jistotou stabilního příjmu. Dům je navržen tak, aby jednotlivé apartmány byly snadno pronajímány turistům, kteří sem přicházejí za krásami přírody, vinařstvím či kulturními a historickými památkami. Jeho členění umožňuje kombinaci soukromého užívání jednotlivých apartmánů a pronájmů.
Projekt zahrnuje čtyři samostatné apartmány, (jedná se o projekt rodinného domu s tím, že prostor je členěn v patrech na jednotlivé pokoje, vybavené jako apartmány), které jsou ideální pro krátkodobé pronájmy s vysokým potenciálem návratnosti. Díky atraktivní poloze v jedné z nejvyhledávanějších turistických oblastí jižní Moravy, v těsné blízkosti Pálavských vrchů a vinařských oblastí, je tento pozemek skvělou příležitostí pro rozvoj investičního záměru s jistotou stabilního příjmu. Dům je navržen tak, aby jednotlivé apartmány byly snadno pronajímány turistům, kteří sem přicházejí za krásami přírody, vinařstvím či kulturními a historickými památkami. Jeho členění umožňuje kombinaci soukromého užívání jednotlivých apartmánů a pronájmů.
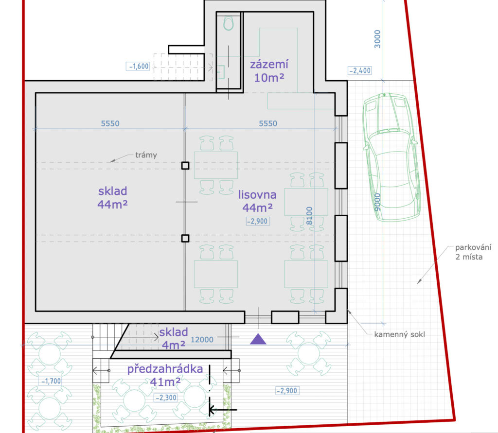
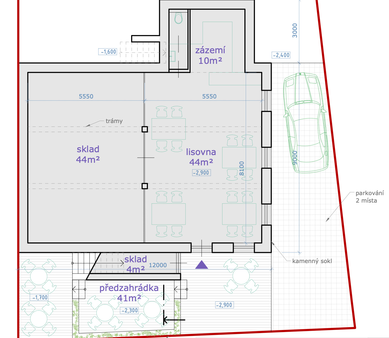
1.PP (Přízemní podlaží):
Bylo navrženo jako vinný sklep dělený na sekci prodejní–ochutnávkovou a sekci vinného sklepa s prodejní galerií vín. Sklepní části děleny v polovině skleněnou stěnou. Architektonicky pojato jako rustikální prostor v moderním stylu – beton ve stylu dřeva. Sklepní část poskytuje prostor pro prodej, ochutnávku, posezení a galerii vín pro řízené degustace a volný samoobslužný nákup vína.
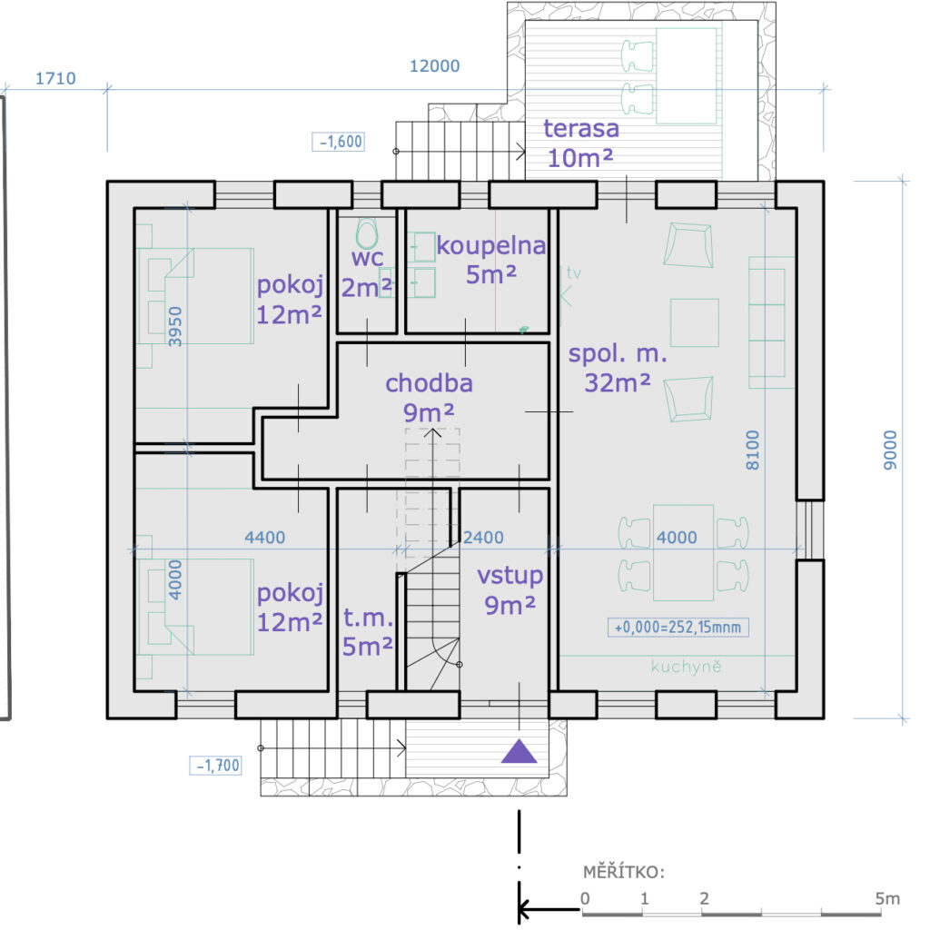
1.NP (Nadzemní podlaží):
Apartmán pro trvalé bydlení, rekreaci nebo pronájem o velikosti 3+kk, samostatné WC, koupelna a podlahové ploše 88 m² + terasa 10 m².
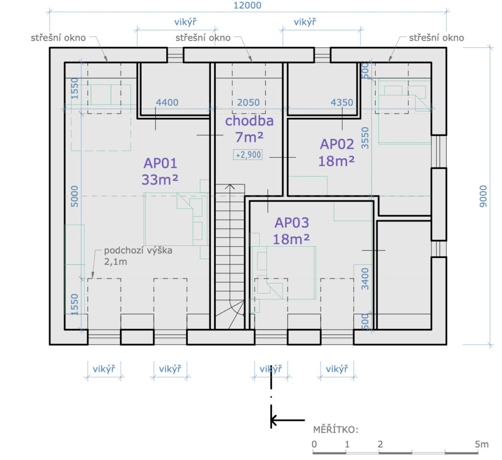
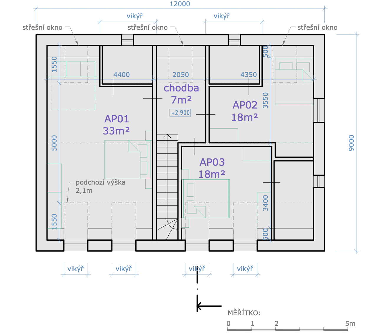
2.NP (Nadzemní podlaží):
Tři samostatné apartmány/pokoje (s příslušenstvím jako apartmán) se samostatným vnitřním vstupem, 2x apartmán pro dvě osoby 20 m² a 19 m², 1x apartmán pro 4 osoby 30 m². Každý apartmán s vlastním WC, koupelnou a kuchyňkou.
Cena je 7.990.000 Kč
Cena vč. provize, právního servisu a projektu vč. stavebního povolení.
Lokalita
Pavlov je investičně velmi zajímavý. Je vyhledávanou lokalitou pro milovníky vína, cyklistiky, turistiky a dokonce i jachtingu, a nabízí úžasné výhledy na dominantu Pálavy, zříceninu hradu Děvičky. Kromě seriálu Vinaři, který tuto obec proslavil, se zde nachází další významná turistická lákadla, jako je Archeopark Pavlov, oblíbený Aqualand Moravia a rekreační oblast nádrže Nové Mlýny. Díky unikátní architektonické hodnotě byl Pavlov prohlášen za památkovou rezervaci, což každoročně přitahuje stále více turistů a zvyšuje zájem o ubytování.

















