Prodej domu 5+kk 186m2, pozemek 313 m2 Holubice (u Brna)
O nemovitosti
Dovolujeme si Vám nabídnout moderní nízkoenergetický rodinný dům 5+kk v obci Holubice u Brna. Dům o celkové ploše 186 m² je navržen s důrazem na komfort, energetickou úspornost a kvalitní materiály. Dům tvoří jeden z celku šesti stylově jednotných staveb. Tato nemovitost je ideální volbou pro rodiny hledající moderní, energeticky úsporné a komfortní bydlení v lokalitě s výbornou dostupností do Brna. Dům je připraven k okamžitému nastěhování bez nutnosti dalších investic.
Podrobnější informace
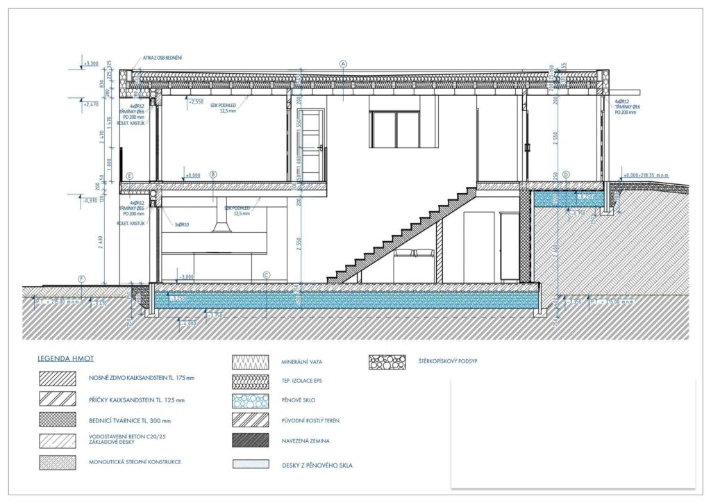
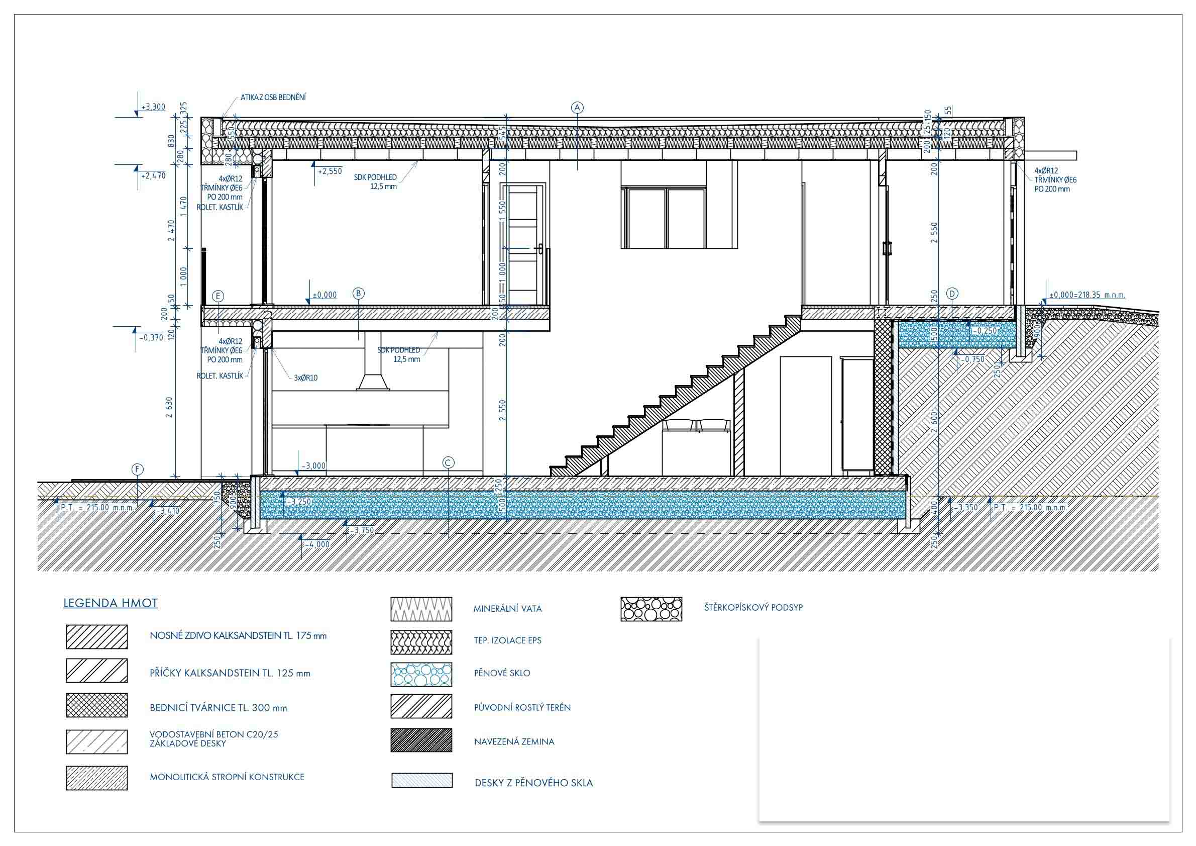
Energetická třída A (pasivní dům): Díky vápenopískovému zdivu, termicky aktivované základové desce a rekuperaci je zajištěna vysoká energetická účinnost a nízké provozní náklady.
Okna z plastových profilů antracitové barvy, zasklena izolačním trojsklem, vč. elektricky ovládaných hliníkových žaluzií a sítí proti hmyzu.
Další vybavení: Kuchyňská linka se spotřebiči, zařizovací předměty v koupelnách, podlahové topení, otopné žebříky v koupelnách, příprava na zabezpečovací systém Jablotron, kompletní osvětlení, světlovod, vinylové podlahy v kombinaci s dlažbou.
Orientace na jihovýchod zajišťuje dostatek denního světla.
Garáž a zahrada: Součástí domu je garáž a zahrada s vydlážděnou terasou, vzrostlým trávníkem a osázená drobnými stromky. Cena nemovitosti je vč. oplocení zahrady.
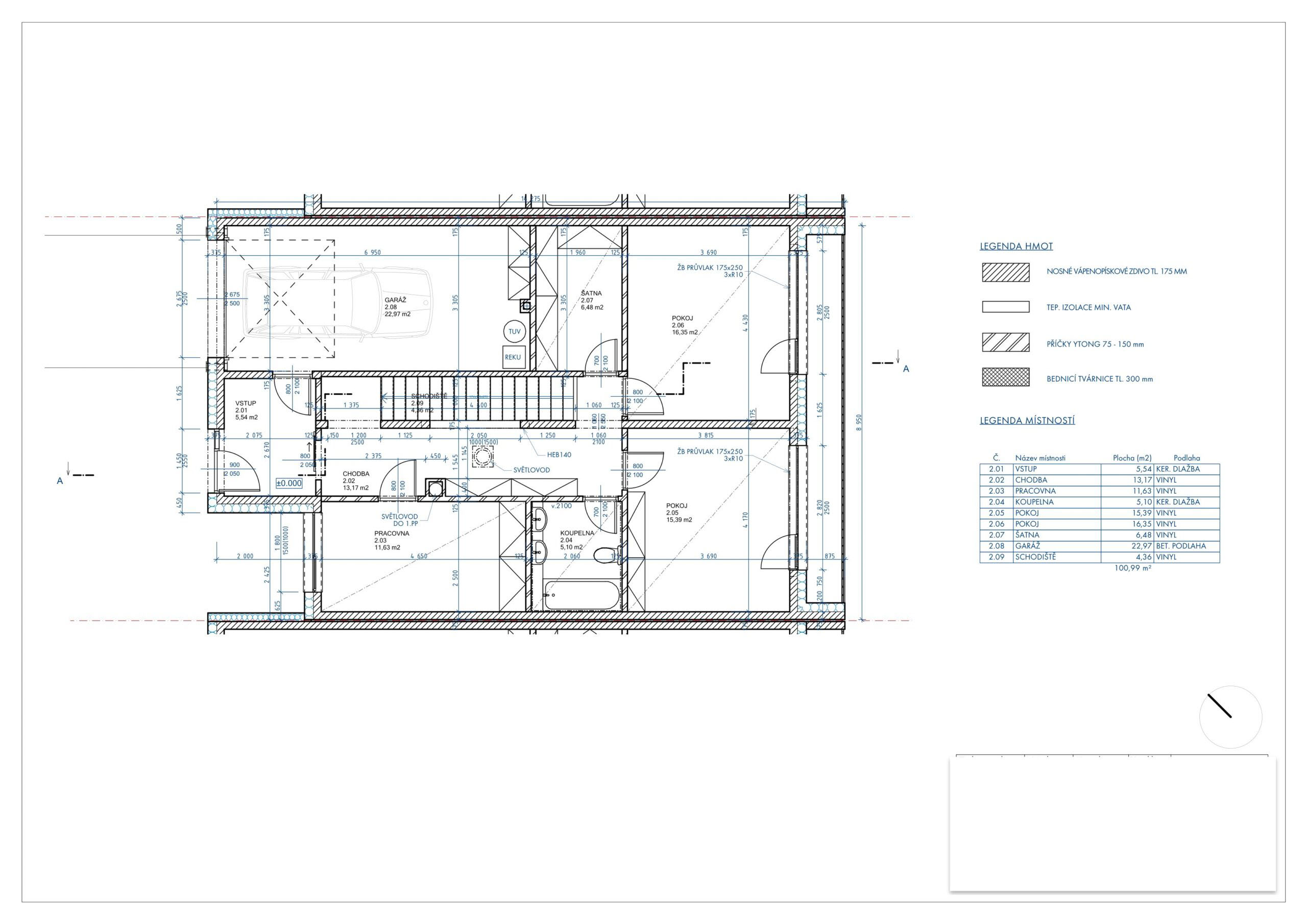
1. NP (nadzemní podlaží):
Pokoj (15,4 m2), pokoj (16,4 m2), pracovna (11,6 m2), koupelna (5,1 m2), šatna (6,5 m2), vstup (5,54 m2), chodba (13,2 m2), schodiště (4,4 m2), garáž (23 m2), terasa (7,7 m2)
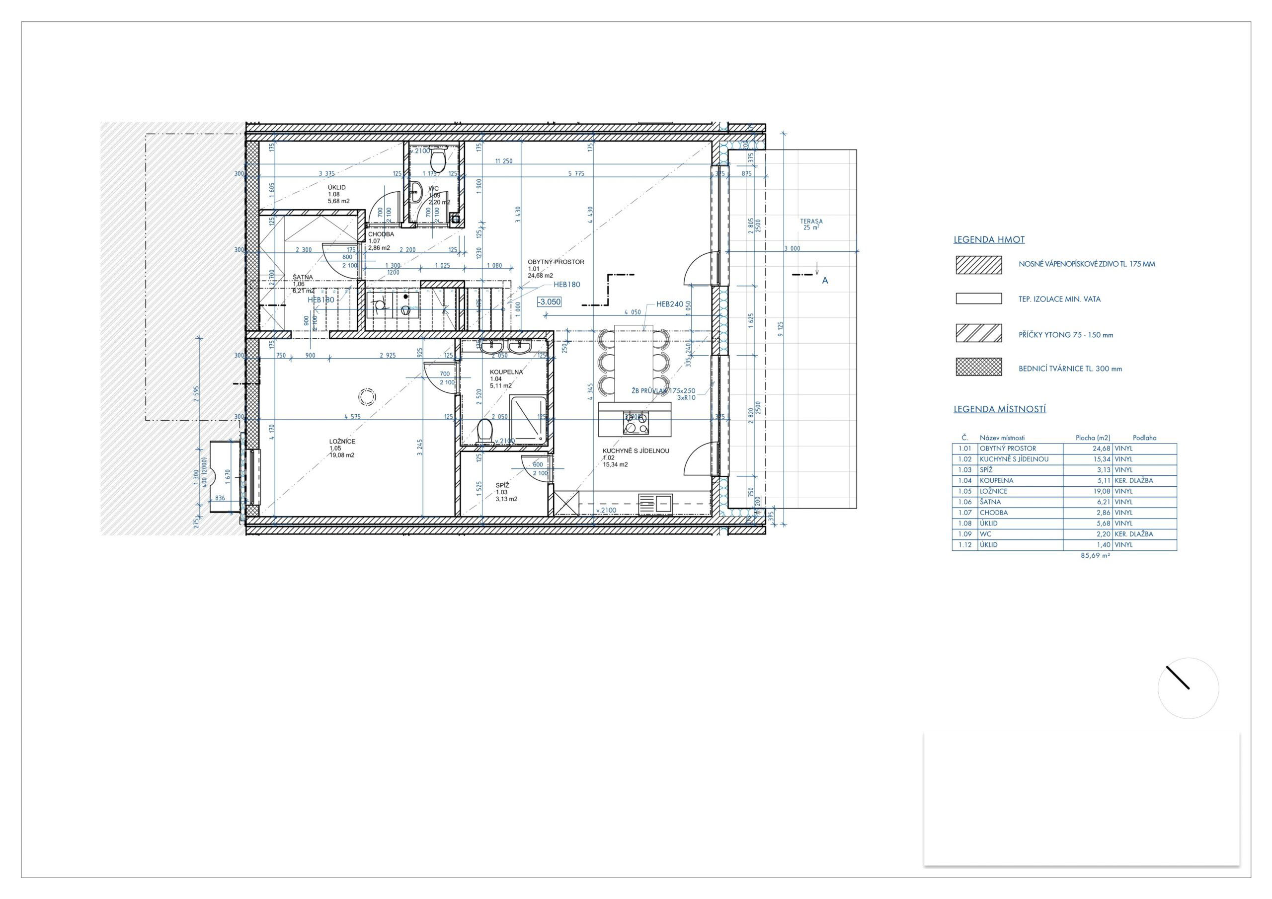
1.PP (přízemní podlaží):
Obytný prostor (24,7 m2), kuchyně s jídelnou (15,3 m2), spíž (3,1 m2), ložnice (19,1 m2), šatna (6,21 m2), koupelna (5,11 m2), wc (2,2 m2), úklid (5,7 m2), úklid (1,4 m2), chodba (2,86 m2)
Cena je 14 150 000 Kč.
Cena vč. provize RK a právního servisu.
Rádi vám pomůžeme s financováním.
Pro více informací nebo domluvení prohlídky nás neváhejte kontaktovat.
Lokalita
Holubice jsou moderní, rychle se rozvíjející obec s výbornou dostupností do Brna – autem jste v centru přibližně za 15 minut. Leží nedaleko sjezdu z dálnice D1 a nabízí pohodlné vlakové i autobusové spojení nejen do Brna, ale i do okolních obcí. Najdete zde kompletní občanskou vybavenost včetně mateřské i základní školy a nechybí ani víceúčelové hřiště pro děti i dospělé.












